כאשר אתם בוחרים שמאי דירות בפתח תקווה, עליכם לוודא כי השמאי בקיא ומנוסה בתחומי מיסוי המקרקעין, קריאת תכניות הנדסיות, ניתוח תכניות בניין עיר "תב"ע" ועוד.
במאמר זה נדבר על הדברים החשובים ביותר ששמאי דירות בפתח תקווה נדרש לדעת על מנת לספק שמאות מקרקעין לדירה ברמה הגבוהה ביותר.
Table of contents [Close]
מה צריך לדעת שמאי מקרקעין על קריאת תכניות הנדסיות
בהערכת שווי דירה, שמאי דירות בפתח תקווה נדרש להבנה הנדסית והתמצאות בקריאת התכניות ההנדסיות על פיהן בנוי הבניין.
קריאה נכונה של תיק הבניין תסייע לשמאי לזהות בצורה הטובה ביותר את הנכס נשוא ההערכה ואת השטחים הצמודים.
על פי היתר הבניה מתוך תיק הבניין שמאי דירות בפתח תקווה יכול לזהות את מיקום החניות, המחסנים, שטחי השירות ועוד.
היתר הבנייה עצמו אינו יכול לסייע לשמאי להבין בצורה מושלמת האם הנכס נשוא חוו הדעת תואם את תשריט ההיתר. אחת ההמלצות היא שבמועד הביקור בנכס, שמאי דירות בפתח תקווה יבצע מדידות לייזר וישווה אותן לתכניות המותיעות בהיתר.
כאשר לשמאי יש את המדידה של הבינוי בפועל ותיעוד מיקום הנכס בפועל, יכול השמאי לבצע השוואות ולאשר בחוות דעתו כי הנכס בנוי כחוק.
הצלבה נוספת ששמאי דירות בפתח תקווה יכול לבצע הינה השוואת תשריט הבית המשותף להיתר הבנייה. שני המסמכים אמורים להראות צורניות דומה של הדירה.
במידה והשמאי מזהה אי התאמות בין התשריטים או בין השטח המופיע בהיתר הבנייה ההנדסי לבין הבינוי בפועל, על שמאי הדירות להסביר פער זה.
להלן דוגמה להיתר בנייה של קומת מתוך מקבץ בנייני מגורים:

מה צריך לדעת שמאי דירות בפתח תקווה על מיסוי מקרקעין
במכירת דירת מגורים על המוכר חל מס שבח. מס השבח יכול לחול על המוכר בכמה מקרים.
- המוכר בעלים של דירה נוספת.
- המכירה עולה על תקרת הפטור על דירה יחידה.
- המכירה מושפעת מקיומן של זכויות בנייה.
אם המכירה מושפעת מזכויות הבנייה, על רכיב זה יחול מס שבח.
מס שבח הינו מס המשולם לקופת המדינה. המס משולם על עליית שווין של המקרקעין.
בין סעיפי הפטור והניכויים הנפוצים: 49ב', 49ז', 39, חישוב מס ליניארי מוטב – תיקון 76 ועוד.
סעיף 49ב' מקנה פטור ממס שבח במכירת דירה יחידה מזכה. תקרת הפטור הינה כ – 5,008,000 ש"ח.
סעיף 49ז' מתייחס למצב בו שווי המכירה מושפעת מזכויות בנייה שטרם נוצלו. הסעיף משמש בדרך כלל בתים וותיקים אשר תרומתם לשווי קטנה יחסית.
על פי הסעיף, ניתן "להעמיס" את זכויות הבנייה על שווי הבית עד לתקרה של כ – 2,400,000 ₪.
סעיף 39 לחוק מיסוי מקרקעין מתיר לנישום להפחית את כל הוצאותיו שהושקעו בדירה או בבית ממס השבח.
תיקון 76 – על פי תיקון 76 לחוק מיסוי מקרקעין, בדירות מגורים ובבתים פרטיים, השבח הנוצר עד ליום 1.1.2014 פטור מתשלום. לבעלי דירה יחידה יינתן פטור ממס שבח, לבעלים של יותר מדירה אחת יתאפשר תשלום מס שבח ליניארי.
להלן דוגמה לתשלום מס שבח ליניארי במכירת דירה למי שיש לו דירה נוספת

הסבר: המוכר החזיק בדירה 30 שנה. מספר השנים בין 2014 לשנת 2025 הינו 11. לפיכך המוכר ישלם מס רק על 11 שנות חזקה מתוך ה – 30. 11/30 = 0.37, כפול שיעור המס (25%) = 9% מס על השבח.
היטל השבחה
בדרך כלל לא חל היטל השבחה בדירות מגורים. קיימים מקרים חריגים בהם קיימות זכויות בנייה להרחבת דירה. עבור זכויות בנייה חדשות אלה, אנו צפויים לשלם היטל השבחה.
היטל השבחה משולם לקופת הוועדה המקומית (העירייה). מקור החיוב הינו בגין זכויות בנייה נוספות שאושרו על המקרקעין וטרם נוצלו.
תשלום היטל השבחה בגין זכויות בנייה חל מיום 1.7.1975. כל תכנית שאושרה טרם מועד זה, זכויות הבנייה נחשבות בגדר "מצב קודם".
דוגמה לתחשיב היטל השבחה שנדרש לבצע שמאי דירות בפתח תקווה
נתונים:
- בשנת 1970 אושרה תכנית מספר 10 לבינוי של 20% במגרש בשטח של 500 מ"ר.
- בשנת 2010 אושרה תכנית מספר 20 לבינוי מרתף בשטח של 100 מ"ר.
- שווי מטר מבונה בשנת 1970 – 200 ₪, שווי מ"ר מבונה בשנת 2010 – 8,000 ₪.
- הנכס נרכש ביום 1965 עם זכויות בנייה של 70 מ"ר עיקרי ו – 20 מ"ר שירות.
כאמור, זכויות הבנייה אשר אושרו לפני שנת 1975 הינן מצד קודם ואין לשלם עליהן היטל השבחה.
בגין תכנית 20 משנת 2010 יש לשלם היטל השבחה (לאחר שנת 1975). יחד עם זאת קיימים שני מצבים אשר משפיעים על גובה המס.
מצב 1 : בשנת 2010 לבית נותרו שנות חיים כלכליים ולכן אין כדאיות להרסו לטובת קומת מרתף.
מצב 2 : בשנת 2010 לבית לא נותרו חיים כלכליים, הבית אינו תורם לשווי וקיימת כדאיות כלכלית להריסתו.
בדרך כלל נוטים לייחס לבתים פרטיים חיים כלכליים בין 60 – 50 שנים.
להלן דוגמה לתחשיב היטל השבחה בשתי החלופות:

ככל שהבית חדש יותר, אנו נדחה את הריסתו לצורך הקמת מרתף עד לתום חייו הכלכליים.
ככל שהבית וותיק יותר, אנו נדחה לתקופה קצרה יותר את הריסת הבית לצורך הקמת קומת מרתף.
בפועל, הדחייה מקטינה את תשלום המס היות והכדאיות הכלכלית קטנה יותר וההשבחה קטנה יותר.
שמאי דירות בפתח תקווה נדרש לשליטה מעולה בכל תחשיבי היטל השבחה, וההטבות שמקנה חוק התכנון והבנייה.
מה צריך לדעת שמאי דירות בפתח תקווה על ניתוח תכניות בניין עיר
אחת ממטרות בדיקת תכניות בניין עיר הינה לזהות מגמות תכנון בסביה. רוכשים רבים מעדיפים להימנע מכבישים סואנים, מבני ציבור עמוסים או מרכזי מסחר מזהמים.
במקרה בו מוכר לא יגבה תמורה בגין זכויות הבנייה יכול להיווצר מצב כי גם לא יקבל תמורה עבור זכויות הבנייה וגם ישלם עליהן מסים שיכולים להגיע למאות אלפי שקלים.
קיימים שלושה גורמי תכנון. הוועדה הארצית, הוועדה המחוזית והוועדה המקומית.
בדרך כלל, הוועדה המקומית היא זו שהתכניות המופקדות מטעמה והמבוססות על מדיניות הוועדה המחוזית, מתירות בניה בפועל.
את התכניות ניתן לאתר באתר משרד הפנים (האוצר), אתר רמ"י ואתר ההנדסה של הוועדה המקומית לתכנון ובנייה.
לתכניות רבות קיימת טבלת זכויות בנייה. מטבלת זכויות הבנייה יכול שמאי דירות בפתח תקווה להסיק את שטח המגרש המינימלי, מספר קומות מקסימלי, שטחים עיקריים ושטחי שירות.
להלן דוגמה לטבלת זכויות בנייה מכח תכנית (קרדיט לאתר הוועדה המקומית לתכנון ובנייה פתח תקווה):

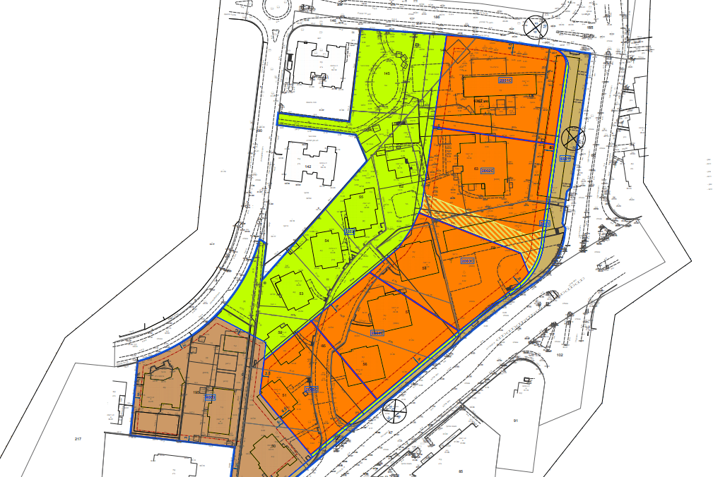
ברוב המקרים, תכניות בניין עיר (תב"ע) כוללות תרשים אשר קובע ייעודי קרקע לרבות מגורים, מסחר, שטחי ציבור ועוד.
להלן דוגמה לתרשים מתוך מסמכי התכנית (קרדיט לאתר הוועדה המקומית לתכנון ובנייה פתח תקווה):

שמאי מקרקעין בפתח תקווה נדרש לניסיון בניתוח תכניות בניין עיר, ניתוח זכויות הבנייה והבנה בייעודי הקרקע השונים.
ניתוח נכון של תכנית בניין עיר הינו קריטי לאומדן שווי הדירה. מתוך תכניות בניין העיר ניתן ללמוד רבות הן על זכויות הבנייה בנכס הנישום והן על הפוטנציאל העתידי ומרקם השכונה העתידי.
לנוחיותכם, קישור למרכז המידע והשירות של הוועדה המקומית לתכנון ובניה פתח תקווה.

במשרדנו, שמאי מקרקעין עם ניסיון של עשרות שנים הבקיאים במגוון תחומי שמאות המקרקעין.
נשמח לתת ייעוץ בכל סוגיה.
טלפון: 2698*
המידע הינו כללי בלבד ואינו משפטי ועלול להשתנות. בביצוע פעולה במקרקעין יש להתייעץ עם גורם מוסמך. ט.ל.ח. בכפוף לתקנון.
- חישוב כדאיות בשכירת משרד לפי יחס ברוטו נטו - 09/11/2025
- איך שמאי מקרקעין מנתח מכרז רשות מקרקעי ישראל - 09/11/2025
- חישוב דמי רכישה בנחלה על ידי שמאי מקרקעין - 09/11/2025

