בלוג

שמאי אשדוד

Оценщик недвижимости в Ашдоде – какова его роль

Любая сделка с недвижимостью в Ашдоде требует не только оценки рыночной стоимости, но и всесторонней юридической проверки объекта.
Опытный оценщик недвижимости в Ашдоде изучает все юридические ограничения, которые могут повлиять на возможность продажи или покупки: аресты, уведомления об отчуждении, ограничения в табу, а также особые условия, наложенные государственными органами.

Дополнительно проводится проверка точности регистрации площади объекта в Реестре недвижимости, включая сопутствующие права на использование кладовых, парковочных мест, садов и прочих прилегающих территорий.

При оценке квартиры или дома, оценщик недвижимости в Ашдоде анализирует также правомерность строительства: наличие выданного разрешения, соответствие существующей застройки проектной документации.
С помощью лазерных замеров, оценки недвижимости  замеряет фактическую площадь объекта и сопоставляет её с архитектурными планами, чтобы исключить отклонения, которые могут повлиять на сделку и стать причиной отказа банка в ипотечном финансировании.

Городское развитие Ашдода – что важно знать?

С начала 1990-х годов, в связи с массовой иммиграцией из бывшего СССР, Ашдод получил значительный толчок в развитии. Были созданы районы Юд и Юд Гимель, и за короткое время город изменил свой облик. Административный центр, торговля и инфраструктура переместились в район Сити, был построен комплекс «Биг Фэшн», больница Ассута и Южная транспортная развязка.

Ортофото комплекса "Биг Фэшн" (Кредит ГИС Комитета местного планирования и строительства Ашдод):

שמאי מקרקעין באשדוד

Что должен знать оценщик недвижимости в Ашдоде о Тама 38.

Важно подчеркнуть, что план Тама 38 завершился в 2023 году. Сегодня обновление здание может осуществляться согласно указаниям городских местных планов или планов реконструкции (Пинуй-Бинуй).

Здания, начавшие процесс планирования Тама 38, продолжат планирование и строительство в соответствии с инструкциями Тама 38.

Одним из способов реконструкции старых районов является программа Тама 38. Ашдод является одним из ведущих городов в разрешении планов Тама 38.

В рамках Tама 38 перестраивается здание, устанавливается лифт и добавляются к существующим квартирам балконы и мамады (бомбоубежище).

Несмотря на очевидные преимущества, которые план Тама 38 предоставляет владельцам квартир, имеются случаи неравного распределения достроек между существующими квартирами.

Только оценщик недвижимости в Ашдоде сможет защитить ваши интересы и анализировать достройку, которая  полагается вам в соответствии с Тама 38.

Например:

В плане пристройки некоторые из существующих квартир получили дополнительные две спальни, а некоторые квартиры получили только одну спальню и небольшое увеличение гостинной.

Если стоимость квартиры с большим количеством спален, превысила стоимость квартиры с меньшим количеством спален и большей гостиной, в этом случае, была установлена компенсация на уровне сотен тысяч шекелей для владельцев квартир, которые получили только одну спальню.

Прежде чем подписывать планы строительства в рамках Тама 38, вам следует обратиться к оценщику недвижимости  для рассмотрения возмещения, которое возможно вам полагаются.

Оценщик недвижимости в Ашдоде должен проанализировать план строительства и обязательно проверить эффективность строительства по отношению к соседним квартирам.

Также, Оценщик недвижимости в Ашдоде должен обратить внимание на планы строительства парковочных мест, уменьшение площади в квартире с целью установки лифта, освещение квартиры после достройки.

Пример достройки, которая блокирует поступающий свет в спальню, нарушая стандарты строительства:

תמ"א 38 אשדוד שמאי מקרקעין

Что должен знать оценщик недвижимости в Ашдоде при оценке частного дома.

Когда оценщик недвижимости в Ашдоде оценивает стоимости квартиры или частного дома, он должен обратить внимание на существующие права на неиспользованные права на строительство.

Одним из ключевых планов, который добавляет права на достройку к частным домам в Ашдоде, является План номер 85/101/2/3.

План добавляет права на достройку основных жилых и служебных помещений. Например: инструкции по добавлению подвалов, навесов для парковочных мест, шатрам, бассейнам и прочее.

Ниже приведена карта застройки города Ашдод по плану номер 85/101/2/3:

Какие налоги на недвижимость должен знать оценщик из недвижимости в Ащдоде.

При проведении сделки с недвижимостью существует три сновных налога, которых, необходимо принять во внимание.

Налог Хитель Ашбаха распространяется на неиспользованные права на строительство. Например: у вас есть участок площадью 300 квадратных метров, и вы можете построить дом 250 квадратных метров.

На участке построен дом площадью 150 кв. м. При определенных условиях вам необходимо будет заплатить местному комитету по планированию и строительству 50% от стоимости прав на строительство между построенным 150 кв.м. и допустимым в соответствии с муниципальным планом 250 кв.м.

Эта сумма может достигать десятков тысяч и даже сотен тысяч шекелей.

Если вы обратитесь к оценщику недвижимости в Ашдоде, оценщик недвижимости может оценить стоимость прав на строительство и правильно рассчитать налог.

Если местный комитет строительства потребует неоправданно высокую сумму за налог Хитель Ашбаха оценщик недвижимости в Ашдоде поможет Вам оспорить сумму налога местного комитета или даже отменить его.

Налог “Минхаль мекаркеей Исраель” (минхаль).

В Израиле имеются два юридических уровня владения земли.

Уровень хозяйства (Баалут) и уровень долгосрочной аренды на 99/49 лет (Хахира).

Земляные участки площадью более 280 квадратных метров, при использовании достройки по городскому плану облагаются дополнительным налогом.

Этот налог может достигать сотен тысяч шекелей.

Оценщик недвижимости в Ашдоде проанализирует договор с минхаль, предварительно оценит требуемый платеж и сможет уменьшить будущий налог.

Налог на рост цены недвижимости (мас шевах). Это налог, уплачиваемый государственной казне за увеличение стоимости недвижимости и независим от прав на строительство.

Существует множество социальных льгот, которые делают значительные скидки на налог (мас шевах), включая раздел 49.з Закона о налогообложении недвижимости.

Оценщик недвижимости в Ашдоде сможет оценить ожидаемый налог, и, таким образом, вы будете знать, как подготовиться к сделке с финансовой точки зрения.

Что должен знать оценщик недвижимости в Ашдоде о нелегальном строительстве.

Исправность разрешений строительства квартиры: во многих случаях мы сталкиваемся с объектами недвижимости, которые предлагаются для продажи, в которых имеется нелегальное строительство.

Нарушение оригинального плана строительства является уголовным преступлением! За что правонарушитель может быть существенно оштрафован.

Кроме того, когда вы запрашиваете ипотеку под квартиру – вы можете столкнуться с отказом банка в предоставлении ипотеки из-за наличия нелегального строительства.

Оценщик недвижимости в Ашдоде сможет с помощью лазерной технологии измерить  квартиру и предупредить вас о строительных отклонениях.

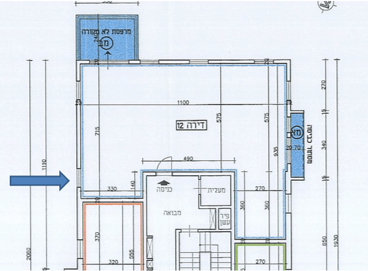
Пример нелегального строительства: присоединение кладовки к гостиной комнате, путем разрушения стены:

Схема квартиры (пространство для хранения прилагается как часть жилой площади):

Оригинальная схема квартиры (складская площадь отделена от площади квартиры):

Ашдод – это развитый и современный город. Цены на недвижимость в Ашдоде высоки, и любая ошибка в совершении сделки с недвижимостью вызывает потерю десяток тысяч и даже сотни тысяч шекелей.

Перед покупкой или продажей имущества оценщик недвижимости в Ашдоте нужно проверить юридическую исправность квартиры, ее целостность с точки зрения плана строительства и существующих прав на строительство в квартире.

Для Вашего удобства предоставляется ссылка на сайт местного комитета по планированию и строительству города Ашдод.

לוגו א. פז שמאות מקרקעין

А.Паз Шамаут мекаркеин оценщики недвижимости с многолетним опытом работы в различных сферах оценки недвижимости

Мы хорошо ознакомлены с областью налогообложения недвижимости и прав на строительство в городе Ашдод. Мы будем рады предоставить Вам консультацию по любому вопросу.

Телефон: 0504-837-837

Веб-сайт: https://www.shamay-mekarkein.com

בכפוף לתקנון. ט.ל.ח. .Информация носит ознакомительный характер и не является какой-либо юридической консультацией